Basket strainer is also known as T type strainer, basket strainer is named from the shape of the filter, and t type strainer is named from the shape of the entire strainer valve.It is a type of filter used in pipelines to remove debris and particles from liquids or gases. It has a cylindrical body with a mesh basket inside that captures impurities while allowing fluid to flow through. The fluid enters the strainer from the side, passes through the basket, and exits through the opposite side.
The main difference between a basket strainer and a Y-strainer is their shape. Basket strainers are typically used for higher flow rates and larger particle sizes, while Y-strainers are more compact and suitable for smaller pipelines and finer filtration.
The material of basket strainer can be cast iron, carbon steel, copper or stainless steel etc. According to the characteristics of the water, oil or gas, the user can choose the corresponding material. For example, water supply system usually choose cast iron basket strainer, because the water supply system usually needs large size, the pressure is not very high, cast iron basket strainer can meet the requirements, but also low cost. Therefore, in water supply system, the cast iron material basket strainer is very popular. In the high-pressure oil and petrochemical systems, it is necessary to choose carbon steel material that can withstand higher pressure. Stainless steel basket strainer is more expensive, but because of its corrosion resistance and sanitary properties, it is generally used in the pharmaceutical, food and other industries.
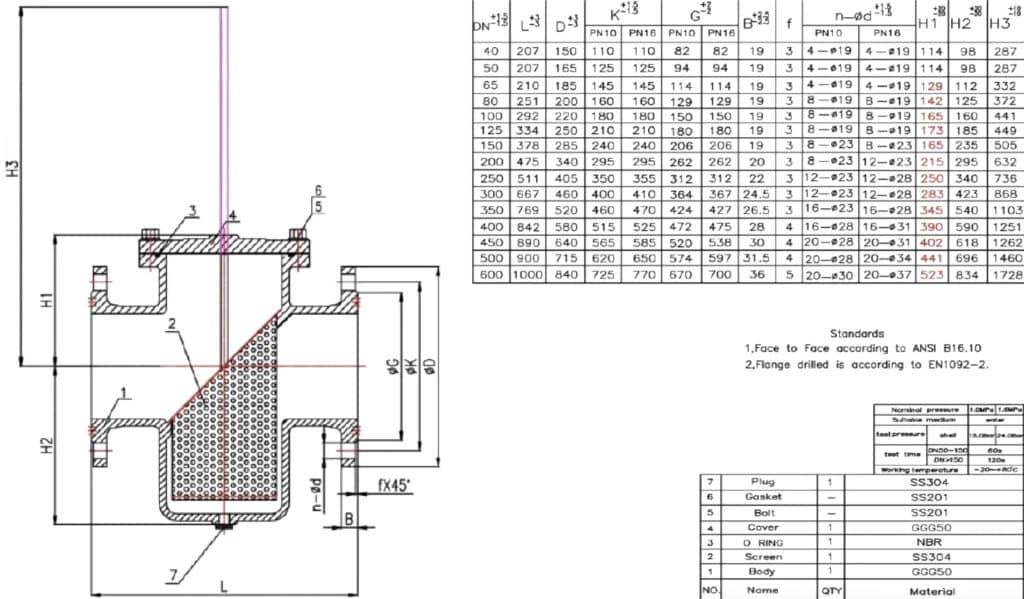
BASKET STRAINER DRAWING
JUDBERD BASKET STRAINER PHOTOS



BASKET STRAINER STRUCTURE
The structure of basket strainer is very simple, normally it include valve body, valve bonnet, filter, plug, gasket, bolts and nuts.
The structure can be in-line type or high inlet and low outlet type as below diagram.
BASKET STRAINER WORKING PRINCIPLE
FLUID ENTRY
_
The fluid (liquid or gas) enters the strainer from the side inlet.
FILTRATION
_
As the fluid flows through the strainer, it passes through the mesh basket, which filters out particles, debris, and other impurities.
FLUID EXIT
_
After the fluid has passed through the basket, it exits the strainer from the opposite side , now free from larger contaminants.
CLEANING
_
The collected debris stays inside the mesh basket, and the basket can be removed and cleaned periodically to maintain optimal performance.
The basket strainer works effectively to protect downstream equipment like pumps, valves, and
machinery from damage caused by contaminants in the flow.
JUDBERD AS PROFESSIONAL MANUFACTURER, BELOW IS OUR ADVICE TO HELP YOU CHOOSE THE RIGHT BASKET STRAINER
To choose the right basket strainer, you need to consider several key factors, including the size of the pipeline,
the flow rate, and the type of fluid being transported. You need consider the following criteria to make sure make an educated decision:
1. PIPELINE SIZE
_
● Match Pipe Diameter
Make sure the basket strainer you choose is the right size for the pipe it’s going in. A strainer that’s too big or too small can lead to poor filtration efficiency or unnecessary pressure drop.
● Flow Rate
Make sure the strainer can handle the flow rate in the pipe. The size of the basket and the size of the holes in the mesh are designed to give you good filtration and not restrict the flow too much.
Judberd Offer strainers that match common pipe sizes, but also provide custom designs for pipes that aren’t standard sizes.
2. FLOW RATE REQUIREMENTS
_
● Low to High Flow
For high flow rates, you typically use larger basket strainers with larger holes in the mesh to keep from losing too much pressure. For low flow systems, you might use smaller strainers or strainers with finer meshes.
● Pressure Drop
Make sure the pressure drop across the strainer is within acceptable limits. If the pressure drop is too high, it can affect the efficiency of the system.
Judberd Offer strainers with different size holes in the mesh and different size baskets to handle different flow rates and help you choose the right one based on how you’re going to use it.
3. TYPE OF MEDIUM (WATER, OIL, GAS, ETC.)
_
● Water
Water is typically thin and may require a strainer with a finer mesh to catch smaller particles. For potable water or clean water systems, you might use a standard carbon steel or stainless steel strainer.
● Oil
Oil, especially in industrial systems, can be thick, so you need to use a strainer that can handle the thickness of the fluid. For oily systems, you might use stainless steel or other materials that resist corrosion.
● Gas
For gas systems, the basket strainers typically focus on catching larger particles because gases don’t have as many particles in them. You might use materials that can handle higher temperatures and pressures.
● Corrosive or Hazardous Media
Or harsh or corrosive media (like chemicals or acids), you might use a strainer made of stainless steel, duplex steel, or other materials that resist corrosion. You might also use special coatings or linings to protect the strainer.
Please think about the properties of the medium (how thick it is, what it’s made of, how hot it is) when you’re choosing the materials and the size of the holes in the mesh. You might need to use custom baskets with coatings or special materials if the medium is corrosive.
4. MESH SIZE (FILTRATION PRECISION)
_
● Coarse vs. Fine Filtration
The size of the holes in the mesh of the basket strainer will determine what size particles it catches. A coarse mesh (big holes) is good for catching big particles, and a fine mesh catches small particles. Think about how clean you need the system to be.
● Material of Mesh
The mesh can be made from different materials like stainless steel, carbon steel, or synthetic materials based on the medium. For example, stainless steel mesh is great for most liquids and gases, but you might need other materials for media that are very acidic or abrasive.
For critical applications, you might need a basket strainer with a fine mesh, but for general use, you might be able to use a basket strainer with a coarse mesh.
5. OPERATING PRESSURE & TEMPERATURE
_
● Pressure
In high-pressure systems, you need a stronger basket strainer to handle the pressure inside the pipe. Make sure you know the maximum pressure the strainer will see, especially in oil, gas, and industrial applications.
● Temperature
If the pipe carries fluids that are hot, make sure the materials of the strainer are rated for the temperature. You might use stainless steel or special alloys for high-temperature applications.
Judberd Offer basket strainers with different pressure ratings and different strengths of materials, including options for high-pressure and high-temperature applications.
6. MAINTENANCE AND CLEANING REQUIREMENTS
_
● Ease of Maintenance
Some systems need to be cleaned or have the mesh replaced often. Choose designs that are easy to maintain, like ones with baskets that come out, ports that are easy to get to, and simple ways to clean them.
● Self-Cleaning Options
Some basket strainers have ways to clean themselves or backflush automatically, which can be good for systems that have a lot of debris or run all the time.
We Recommend self-cleaning strainers for systems that have a lot of debris or where it’s hard to clean them often. Please refer to our instruction for how often you need to clean them based on how much dirt is in the fluid.
7. MATERIAL SELECTION
_
● Corrosion Resistance
Depending on the medium, you might need to worry about the strainer resisting corrosion. Stainless steel, duplex steel, and other alloys resist corrosion well, but carbon steel might be okay for systems that aren’t very aggressive.
● Wear Resistance
In systems that have particles that wear on the strainer, you might need to think about materials and coatings that resist wear, like coatings or materials like polyurethane.
We Offer a range of materials, from standard carbon steel to high-performance alloys, and we can help you choose the right material based on the conditions where the strainer will be and the properties of the fluid.
8. CUSTOM DESIGN
_
Depending on what you needs, we can customize the basket strainer in terms of size, material, mesh type, and additional features like drain ports or bypass valves. Offering custom solutions can help you meet specific requirements.
We can work with you to understand what you need and offer you a custom design. We might change the size of the holes in the mesh, the material we use, or add features like more than one basket for more filtration capacity.
As a professional manufacturer, we can help you choose the right basket strainer for your system. We can give you advice on the size of the pipe, the flow rate, the type of fluid, how clean you need the system to be, the conditions where the strainer will be, and the materials you use, so help you choose a strainer that works for you and keeps your system running well.
Then you can make a good decision that makes your system work well and keeps you from spending too much money on maintenance.
BASKET STRAINER INSTALLATION
The basket strainer, like the y strainer, is used to filter impurities from liquids and gases, thus ensuring the proper functioning of pumps, valves and other piping components downstream in the pipeline and the good working condition of the pipeline.
it is necessary to install a shut-off valve in the upstream of the basket strainer, the shut-off valve can be gate valve or butterfly valve,If the filter of basket strainer and y strainer need to be cleaned or replaced, or even if the whole strainer valve needs to be replaced or repaired, the upstream shut-off valve can be closed to perform the corresponding operation.
Of course, together with the basket, it is necessary to install the dismantling joint which are specially designed to facilitate valve removal.
MAINTENANCE AND CARE OF BASKET STRAINERS
Proper maintenance and cleaning of a basket strainer are essential to ensure its long-term performance and reliability.
Regular maintenance helps prevent blockages, pressure drops, and system damage. Here are the key steps for maintaining and cleaning a basket strainer:
REGULAR INSPECTION
_
● Check for Clogging
Periodically inspect the basket strainer for signs of clogging or excessive debris buildup. If the flow rate decreases or if there is a noticeable pressure drop across the strainer, it may indicate that the basket needs cleaning.
● Inspect for Wear and Tear
Regularly check the mesh for signs of damage, corrosion, or wear. Replace the basket if it is worn or if the mesh is no longer effective at filtering.
CLEANING PROCEDURE
_
● Remove the Basket
Shut down the system and isolate the strainer from the pipeline. Carefully remove the basket from the strainer housing. Depending on the design, some baskets may require the removal of bolts or fasteners.
● Clean the Basket
Clean the mesh with a high-pressure water jet or other suitable methods to remove accumulated debris and particles. For stubborn debris, use a brush or cleaning solution that is compatible with the material of the basket and the contaminants.
● Inspect the Mesh
After cleaning, inspect the mesh to ensure that it is free from holes or damage. If the mesh is compromised, replace it with a new one.
REASSEMBLY AND REINSTALLATION
_
● Ensure Proper Sealing
When reinstalling the cleaned basket, ensure that the gasket or seal is intact and properly seated to avoid leaks.
● Tighten Fasteners
Reattach any bolts or fasteners securely to prevent the basket from loosening during operation.
● Test the System
After reassembling the strainer, test the system to ensure that it is operating properly, and verify that there is no unusual pressure drop or leakage.
SCHEDULED MAINTENANCE
_
● Clean Regularly
The frequency of cleaning depends on the level of debris in the medium. In environments with high particulate levels, cleaning may be required more frequently (e.g., monthly). In cleaner systems, quarterly or semi-annual cleaning may suffice.
● Check Pressure Differential
Install pressure gauges before and after the strainer to monitor pressure differentials. A significant increase in differential pressure indicates that the strainer needs cleaning.
● Replace Worn Parts
Over time, components such as gaskets, seals, and the mesh itself may wear out. Replace these parts as necessary to maintain optimal performance.
AVOIDING COMMON PROBLEMS
_
● Prevent Overloading
Ensure that the strainer is sized appropriately for the flow rate and particle size in the system. An undersized strainer can become clogged more quickly and cause operational issues.
● Use Corrosion-resistant Materials
For systems handling aggressive or corrosive media, select a basket strainer made from corrosion-resistant materials such as stainless steel, or use protective coatings to prolong the life of the strainer.
● Monitor for Leaks
Regularly check the strainer for leaks, especially after cleaning or maintenance. Leaks could indicate improper sealing or damage to components.
LONG-TERM STABILITY
_
● Environmental Considerations
Ensure that the strainer is designed to withstand the environmental conditions in which it operates, including temperature, humidity, and corrosive elements.
● Proper Storage
If the strainer is not in use for a prolonged period, store it in a dry, clean area to prevent corrosion and contamination.
Proper maintenance and regular cleaning of the basket strainer are critical for ensuring that it continues to function efficiently and extends the lifespan of the system. By following these steps and performing regular inspections, you can ensure that your basket strainer operates reliably, minimizing downtime and preventing costly repairs.